Ngāti Ōtara Multisport Facility
Ngāti Ōtara Multisport Facility
Case Study

- Owner: Auckland Council
- Landowner: Auckland Council
- Operator: Trust
- Project Type: Renewel
- Primary Function: Community Sport
- Date Planning Commenced: 2012
- Date Construction Completed: May 2021
- Total Project cost (excluding land): $6.4 million
Vision
To develop a fit for purpose multi-sport facility on Ngāti Ōtara Park which meet community needs whilst ensuring the facilities are viable and sustainable with an effective governance structure.
Project partners
- Auckland Council
- Otara Rugby League and Sports Club

Description of need/Challenge to solve
An assessment completed by Auckland Council in 2017 concluded that the existing facilities at Ngāti Ōtara Park were not fit for purpose and that four of the seven sports codes that used the facilities (including league, netball, tag, and rugby) were growing, and the facilities’ size and quality was impacting this growth.
Population growth in the area surrounding the park was expected to be 10-15% over ten years and, in addition, the park utilisation was expected to increase over the 10 years when the installation of a floodlit turf was completed, therefore increasing the capacity for winter training.
Ōtara Scorpions League Club has been on the park since 1971. The club encompasses rugby league, tag football, netball, Samoa Kilikiti as well as other sports to deliver a wide range of sporting and recreational activities on the park.
Project specification
The 2017 Needs Assessment included a facility specification based on the needs of the codes, determined following extensive code and community feedback including open days and surveys. This included the following functions with a strong emphasis on the design being flexible and multi-purpose:
- Main clubrooms
- Game day control and administration
- Education
- Match officials/first aid
- Club manager
- Kitchen and bar
- Changing rooms
- Toilets (club and public)
- Rehabilitation
- Storage for player gear, uniforms, cleaning equipment.
Later, the idea of adding laundry facilities was included as a service available to sports participants and the wider community whilst also offering a new income stream.
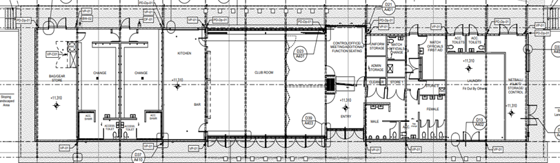
The facility is 600m² and includes a 175m² clubroom with polished concrete floor, a conference room, kitchen, change rooms, toilets and laundry facilities. A first aid room and storage are also within the building. The main doors across the front of the building open to overlook/connect to the fields - "Fale " o supporters and spectators can sit inside or on the deck and watch the game, which is particularly good for older spectators.
The project had strong input from local mana whenua through the marae, Council contacts and current iwi partnerships. Many cultural elements were thoughtfully included in the design and storytelling. The external precast panels are Monarc creative panels, which were specially honed to achieve ‘reed’ patterns. The exterior also features 39 perforated aluminium façade feature panels, which were coordinated with a cultural designer and local iwi. Depicted on these panels is the silhouette of the Maunga that was quarried away but was the Maunga of this area.
Project Team
- Project Manager: Shiva Dubey, Auckland Council, shiva.dubey@aucklandcouncil.govt.nz
- Communications Manager: TBC, Auckland Council
- Funding/Partnerships Manager: TBC, Auckland Council
- Architect: Phillip Howard, Pacifica Environments NZ Ltd., Philliph@penzl.co.nz/www.pacificenvironments.co.nz
- Quantity Surveyor: Pieter van Heerden, Maltby ltd
- Engineer: TBC, Pacifica Environments NZ Ltd.
- Construction company: TBC, Cassidy – Main Contractor, Dave Handley 0212242872/d.handley@cassidy.co.nz
- Financial Modelling: Tim Keat, Auckland Council
- Feasibility and Master Planning: Tim Keat, Auckland Council, Also Global Leisure Group provided earlier Needs Assessment report
Project overview
This project is a collaboration between Ōtara Scorpions Rugby League Club and Auckland Council to replace multi-sport facilities at an Auckland Council Sports Park.
The initial discussion for this project began in 2012 with the first feasibility study and concept plans completed in 2013 for a much larger facility than has been built. The feasibility study in 2013 concluded that the external funding required for the then $12.5m project was not likely to be achieved and recommended the scope of the project be revisited.
Discussions continued between 2014 and 2017 when the new needs assessment report was completed – and then further concept plans and a business case which confirmed Council funding as part of the 2018 Long Term Plan.
Previously, the project included redevelopment of both the multi-sport facility and the marae, however the two projects were separated in 2018 with the multi-sport facility renewal being completed ahead of the marae redevelopment which is still in progress and likely to start construction in 2024.

A key part of this project was the formation of a new governance entity with the establishment of the Ōtara Rugby League and Sports Club (Sports Club) who leases the multi-sport facility from Auckland Council and is responsible for the operation of the facility. The new entity formed from the Scorpions Rugby League Club who had taken a lead on the project (and held the previous lease of the old facility).
Six sports (referred to as the Sports Collective) sit under this Sports Club, each with their own incorporated society status for financial purposes – however, the Sports Club undertakes several administrative roles for the sports including distributing information and playing registration in some cases.
The new sports club management entity has a governing board which is made up of:
- three external members with skills in the areas of legal, accounting and one a member of the local board
- three members from the sports collective
- the executive of the Scorpions Rugby League Club (currently five members)
- an observer from the marae.
A community lease exists between Auckland Council and the Ōtara Rugby League and Sports Club and this sets out clear roles and responsibilities of each party including shared maintenance responsibilities whereby the Council looks after certain elements of the building including the building exterior. The Sports Club is responsible for internal maintenance and most utilities. The details of the responsibilities are set out clearly in detailed tables which form a schedule of the lease.
The lease also includes community outcomes and related performance measures that the Sports Club must work to achieve and report annually on to the local board. These objectives are currently:
- maintain and grow club membership
- champion smokefree, host responsibilities and promotion of water over sugar beverages
- increase participation in sport by Māori
- implement an energy, water and waste minimisation plan.
The Ōtara Rugby League and Sports Club have a strategic plan which can be found on their website - https://www.sporty.co.nz/otarascorpionsrl/SCORPIONS-STRATEGIC-PLAN/tab1
Included in this strategic plan is an objective to establish formal agreement with the sports that share the facility. This is a work in progress. Currently, the governing Sports Club has sufficient operational grants and income that it is not necessary to charge the individual sports for the use of the facility, however it is the intention that charges are phased in. To support this, the individual sports are being provided with capability coaching and assistance with business planning.
The Ōtara Rugby League and Sports Club have five full time staff, two are paid via operational grants and income and three who are paid via the Work and Income Flexi-wage scheme, which supports employment for school leavers or those who were previously on an unemployment benefit.
The staff look after the facility reception, manage bookings, provide catering services to programmes and functions and undertake cleaning and maintenance (including of the commercial laundry facility).
Priority use of the facility is given to the existing six sports with other bookings taken to fit around their use. Currently a major non-sport user of the facility is a programme for the elderly which runs five days a week during the day.

The Sports Club coordinate and support partnerships in sport, health and elderly care who run programs within the Complex i.e. coaching and managers workshops, elderly programmes, health and wellbeing sessions for players and community, vaccination drives relevant to current concerns, Census and General election initiatives.
The facility is open 7am to 9pm, 7 days a week which has helped with community connection and use of the facility. During sports trainings there is the option for whānau of those training to use the facility with TV, free Wi-Fi and charging stations included in the facility with rangatahi in mind.
The building has key accessibility features including being single level, ramp access and accessible bathrooms. The ease of access to the building is very much appreciated by the older adults who use the building weekly.
Ngati Ōtara Park is built on an old dump site which meant extra design considerations were needed including a pipe system to allow release of any gas build up. Environmental sustainability was a key design principle used in the facility design and key elements include a stormwater system which helps ensure only clean water reaches the nearby estuary and lots of windows and doors means less reliance on HVAC systems.
Evaluation
The facility is currently used by 9 sports codes:
- Scorpions Rugby League
- Scorpions Netball
- Last Stance Otara Kick Boxing
- 4Kings Sports & Community Inc
- Auckland Pascifika Kilikiti Assoc
- Counties Cyclones National Tag
- Samoa International Tag Football Inc
- Malisi Sports
- Scorpions Volleyball.
Total participation is approximately 3000 individual participants per year.
In addition, the facility is used by:
- Pacific Homecare FiaOla Elderly Program run 5 days per week, 4 terms per year. Niue-Monday/Samoa-Tuesday/Indian-Wednesday/Tongan-Thursday/Cook Island-Friday
- CLM Funding and Drop In Sessions to all sports club in the region
- Sports Collective meetings/registrations during their season.
Challenges
While overall construction went relatively smoothly, the project was delayed and costs increased due to Covid lockdowns.
Sourcing the appropriate level of power for the building was a challenge. Vector had no live data on the transformer hence needing to relook into powering the building as designed. A learning from this was the need to double check the electricity capacity in the design phase.
Construction of a space fit for purpose for a laundry was also a challenge. The idea of having a laundry as a means to sustain and maintain the facility was born out of the need to ensure the club could meet the responsibility of facility upkeep.
The club researched what business would allow them to create cashflow and settled on a laundry due to the captive audience of sports players and families in the local area.
The challenge was convincing a finance company to give an unsecure loan on a vision. However, the club was granted a $300k loan to build and purchase washers/dryers including the expert advice and contract required for support.
A space of this nature was the first of its kind on a Council sports park and there were some challenges with water access, power and ensuring it fitted in with the room provided as well as having the required air circulation.
Learnings
From the sports club perspective a big learning was the importance of representation from the sports collective attending all project meetings, particularly meetings when design details were being discussed. This helped ensure that the view of the facilities users was heard and incorporated at the right time.
From the project managers a learning was the need to check and ensure for subcontractor warranties around weather tightness issues, main contractors will struggle in getting defects sorted in later years.

Project cost and funding
This capital project was fully funded by Auckland Council via the Long-Term Plan except for the purchase of laundry machines which were funded via a loan to the Club. The laundry machine income is used to cover operational costs of the facility and is doing well with the success of this being attributed to a good client base, accessibility and easy parking.
| Total Project Cost | $6.4 million | Total Operating Cost | per annum *** | 622000 | |
| Project Expenses | Estimated Proportion Planning & Design Costs | 12% | Operating Expenses | Staff & Contractors | 37% |
|
Estimated Proportion Construction Costs |
88% | Maintenance & Repairs | 0.4% | ||
| Estimated Proportion Fit-Out Costs | NA | Cleaning | 2% | ||
| Project Funders | Local Government | 100% |
Equipment |
11% | |
| Local Philanthropic Trusts | Energy* | See note | |||
| Central Government | Insurance* | See note | |||
|
Gaming Trusts |
Services | 3% | |||
| Lotteries | Promotion | 0.1% | |||
|
Education/School |
Depreciation | 4% | |||
| Local Fundraising/Code Contributions | Purchases | 21% | |||
| Other (sponsorship) | Team costs | 8% | |||
| Other | 14% | ||||
| Total Operating Income | $ per annum | 637000 | |||
| Income Sources | Community User Pays | 5% | |||
| Commercial Activity | 30% | ||||
| Grants | 5% | ||||
| Local Government Subsidy** | See note | ||||
| Sponsorship | 4% | ||||
| Education/School | 0% | ||||
| Service/programme delivery contracts | 56% |
* Currently covered by Auckland Council
** Power and insurance covered by Auckland Council
*** Principal payments on loan for laundry machines not included in above
August 2023

